Merrimack Repertory Theater – Unit 8
Interior Reconstruction & Structural Rebuild
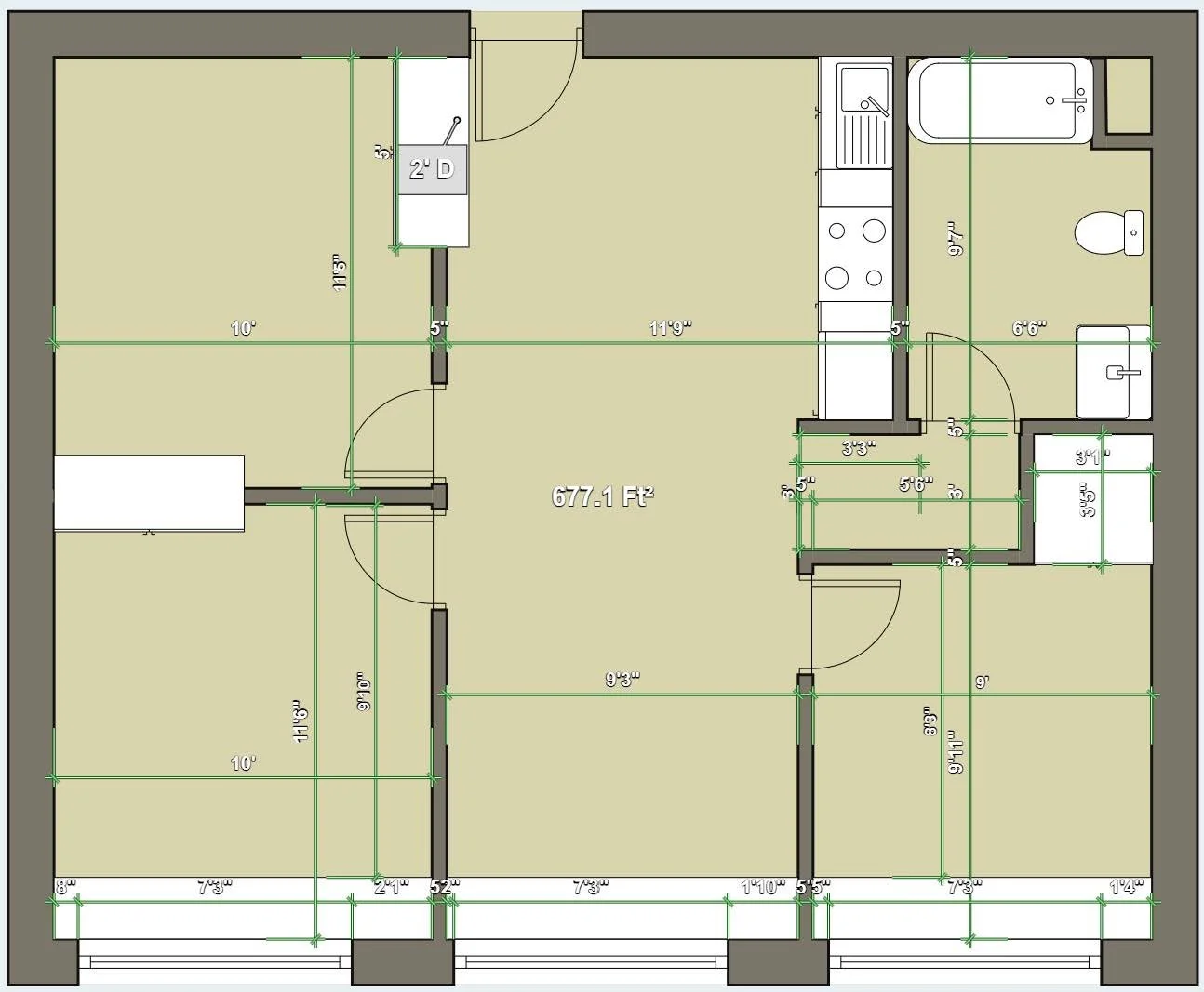
Lowell, MA | Full interior rebuild following prior water damage
This unit had been previously gutted to the original mill floor following water damage six years prior by another restoration contractor. Our scope began with evaluating existing conditions and rebuilding the unit correctly from that point forward.
Project Scope Summary
Full interior reconstruction
Structural floor framing and reinforcement
Plumbing rough-in and bathroom reconfiguration
Interior wall framing and finish systems
Kitchen, living, and bathroom finishes
The unit was fully gutted to the original mill floor to assess existing conditions and prepare for structural upgrades.
A detailed construction plan was developed prior to starting work to establish layout, dimensions, and structural coordination.
Ram board was removed and a continuous vapor barrier was installed over the original mill floor prior to installing the new subfloor.
A new floor system was structurally framed and reinforced with additional blocking to ensure long-term stability.
Plumbing rough drainage was installed prior to framing the second floor layer. The bathroom floor was intentionally raised to accommodate proper drainage and slope.
The tub was installed with additional structural reinforcement to prevent movement and long-term warping.
Shower valve installation was completed to manufacturer specifications for secure, leak-free performance.
All interior walls were framed with additional blocking to improve rigidity and long-term structural stability.
Additional headers were installed to eliminate the ceiling-to-wall gap present in other units, resulting in a stronger connection and improved overall wall integrity.
Blue board and plaster were used in place of standard drywall to provide a smoother finish and a more durable wall system.
Completed bathroom following full structural rebuild, plumbing, and finish installations.
Finished living, dining, and kitchen area after complete interior reconstruction and finishing work.